
The automobile elevator applies the highly well-developed variable voltage, varable frequency control technology, precise speed governor control. It avoids noids and car-shake due to enlarged burden of traction system because of uneven encountered force to the car. It optimizes the characteristics of this series to the greatest extent.
Safety guide device
Safety guide device sets in the car ground to ensure fine security of the cars and the eleators.
Double penetration to open the door
The elevator capsules double-sided through the door which ls more convenlent for the safety sector and for the cars to enter into/exit from the elevator cars.
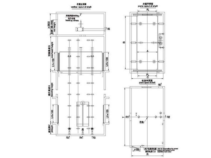
CAR ELEVATOR CONSTRUCTION PARAMETERS


| 上一條:DEBRIS ELEVATOR | next:Business license |















