
The company serial escalators fully apply the novel materials and the advanced domestic and overseas technology for design and manufacture. The escalators have the consummate structure, elaborate stairway, delicate belt,attractive outline, They are widely applicable for large passenger flow areas such as the shopping centers,supermarkets,subways, airports etc. It adds a charming mobile view for vast constructions.
long life
The truss utilizes first class rectangle steel with unique structure, high strength and nice anti-corruption durable features
little noise
The large size dimeter of step roller operates minimizes the noise and prolongs the product life
More secure
The human-oriented handrail entrance is secured by brush
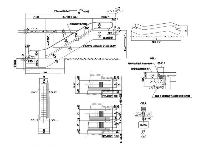
30°~35°ESCALATOR CONSTRUCION PARAMETERS


| 上一條:SOLAR PHO TOVOLTAIC ELEVATOR | next:Business license |














